Rustico in vendita

Valsamoggia, Via Ziribega - Ziribega
€ 160.000
5 locali 5 locali
422 Mq 422 Mq
1 bagno 1 bagno

Rustico in vendita

Valsamoggia, Via Ziribega - Ziribega

Descrizione annuncio

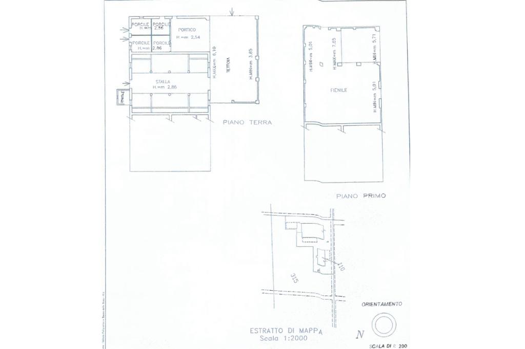
Valsamoggia, località Ziribega: Proponiamo in vendita un rustico indipendente, ideale per chi cerca una soluzione da ristrutturare e personalizzare secondo i propri gusti.

La proprietà è composta da un rustico principale con una stalla adiacente, che offre diverse possibilità di utilizzo, come deposito o spazio per chi desidera tenere animali. Completa la proprietà un terreno di circa 900 mq.

Per informazioni ulteriori su indici di edificabilità, visite o approfindimenti contattare il tel. 0516707183 - cell. 3514304374.

PRECISAZIONE: le caratteristiche tecniche, la disposizione interna degli ambienti e degli accessori, le planimetrie allegate potrebbero, in alcuni casi, essere diversi dall’effettivo stato di fatto dell’immobile. L’Agenzia Immobiliare declina ogni responsabilità per eventuali involontarie incoerenze o difformità. Le descrizioni sopra riportate, nonché le planimetrie allegate, non rappresentano alcun impegno contrattuale. A volte l’indirizzo può non rispecchiare esattamente l’ubicazione dell’immobile ed è utile al solo fine di fornire un riferimento generico per la su localizzazione.

Mostra tutto

Nelle vicinanze

Trasporto pubblico Trasporto pubblico
Castelletto Serravalle Motori Spa
Castelletto Serravalle Motori Spa
880 m
Ricariche auto elettriche Ricariche auto elettriche
Castello di Serravalle
1,4 Km
Scuole Scuole
Scuole
2,2 Km
Farmacia Farmacia
Sant'Apollinare
1,4 Km
Ospedali Ospedali
Associazione Pubblica Assistenza Castello di Serravalle ODV
1,5 Km
Supermercati Supermercati
Conad Valsamoggia
850 m
Bar Bar
500
830 m
Ristoranti Ristoranti
Pizzeria Trattoria Elisa
1,6 Km
Al Mercatello 748
2,4 Km
Agriturismo Pan di Legno
2,4 Km
Vecchia Osteria di Ponzano
2,4 Km
Mostra tutto

Caratteristiche

Rif.:
61187523
Piano:
1 di 2 (Piano su più livelli)
Camere da letto:
5
Arredamento:
Assente
Condizionamento:
Assente
Ascensore:
No
Mostra tutto
Prezzo Prezzo
€ 160.000
Rata mutuo Rata mutuo
€ 760 / mese
Spese annue Spese annue
€ 0
Proponi il tuo prezzoProponi il tuo prezzo

Classe Energetica

Questo immobile è esente da classe energetica
Anno di costruzione:
1920
Riscaldamento:
Assente

Ti interessa visionare l'immobile?

Fissa un appuntamento  Fissa un appuntamento

Richiedi informazioni

Clicca su Leggi per aprire l'informativa
* Questi campi sono obbligatori

Calcola il tuo mutuo

Semplice e senza impegno
Anticipo

( % )
Mutuo

( % )

pochi semplici passi

inserisci i tuoi dati
Questionario completato
Grazie per aver richiesto un appuntamento senza impegno con un nostro Consulente del Credito e Assicurativo.

Hai inserito correttamente tutti i dati necessari e a breve riceverai una e-mail con un link da convalidare per inviare i tuoi dati.
Affiliato
Studio Valsamoggia Srl
Viale dei Martiri, 8 40050 Valsamoggia (BO)

Il nostro staff


  • Giovanni Giargiana
    Collaboratore

  • Treshani Chiara Hettithantrige
    Collaboratrice

  • Paolo Menzani
    Collaboratore

  • Simone Mazzocchi
    Collaboratore

  • Sofia Ruggeri
    Coordinatrice

  • Mattia Venturi
    Affiliato
Viale dei Martiri, 8 40050 Valsamoggia (BO)
Zona: Castello di Serravalle e Frazioni - Monteveglio
Mostra su mappa
Orari: dal lunedi' al venerdi' 9-13 e 15-19.30; il sabato 9-13
Affiliato
Studio Valsamoggia Srl
Viale dei Martiri, 8 40050 Valsamoggia (BO)

2026 Tecnocasa Franchising S.p.A. - P. IVA 08365160152 - Via Monte Bianco 60/A 20089 Rozzano (MI). Ogni agenzia ha un proprio titolare ed è autonoma. Privacy policy | Policy utilizzo | Cookie policy