Porzione di bifamiliare in vendita

Valsamoggia, Via Secchiano - Castello Di Serravalle
€ 361.000
5 locali 5 locali
233 Mq 233 Mq
2 bagni 2 bagni

Porzione di bifamiliare in vendita

Valsamoggia, Via Secchiano - Castello Di Serravalle

Descrizione annuncio

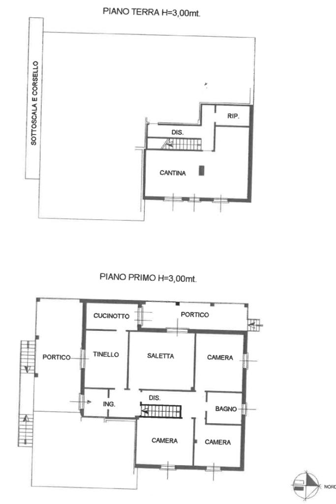
Monteveglio, località Castello di Serravalle: proponiamo in vendita porzione di casa con terreno di proprietà esclusiva, inserita in contesto collinare riservato e facilmente accessibile tramite strada asfaltata.

L’immobile si sviluppa su due livelli. Al piano terra è presente un’ampia cantina adibita a taverna, oltre ad un comodo bagno con doccia. Il primo piano ospita l’abitazione principale composta da tre camere da letto, salotto con camino, cucina abitabile con affaccio su terrazza, un secondo bagno completo di doccia e vasca ed, infine, un'ampia veranda. Gli ambienti si distinguono per metrature generose ed ottima luminosità. Completano la proprietà un ampio garage, il giardino pertinenziale e tre ettari di terreno, elemento di particolare interesse per chi è alla ricerca di spazi esterni esclusivi e indipendenza in posizione tranquilla.

Per maggiori informazioni o fissare un appuntamento tel. 3514304374 - 0516707183

PRECISAZIONE: le caratteristiche tecniche, la disposizione interna degli ambienti e degli accessori, le planimetrie allegate potrebbero, in alcuni casi, essere diversi dall’effettivo stato di fatto dell’immobile. L’Agenzia Immobiliare declina ogni responsabilità per eventuali involontarie incoerenze o difformità. Le descrizioni sopra riportate, nonché le planimetrie allegate, non rappresentano alcun impegno contrattuale. A volte l’indirizzo può non rispecchiare esattamente l’ubicazione dell’immobile ed è utile al solo fine di fornire un riferimento generico per la su localizzazione.

Mostra tutto

Nelle vicinanze

Ristoranti Ristoranti
Taverna del Borgo
1,2 Km
Trattoria La Torre
2,6 Km
Al Mercatello 748
2,8 Km
Mostra tutto

Caratteristiche

Rif.:
61185996
Piano:
1 di 3 (Piano medio)
Box:
1
Posti auto:
1
Terrazzi:
1
Camere da letto:
3
Mostra tutto
Prezzo Prezzo
€ 361.000
Rata mutuo Rata mutuo
€ 1.715 / mese
Spese annue Spese annue
€ 0
Proponi il tuo prezzoProponi il tuo prezzo

Classe Energetica

G
G
G
G
G
G
G
G
G
EP globale non rinnovabile:
160.00 kW h/m² anno
EP globale rinnovabile:
3.50 kW h/m² anno
EP invernale del fabbricato:
EP estiva del fabbricato:
Anno di costruzione:
1960
Riscaldamento:
Autonomo
Tipo impianto:
A radiatori
Tipo alimentazione:
Metano

Ti interessa visionare l'immobile?

Fissa un appuntamento  Fissa un appuntamento

Richiedi informazioni

Clicca su Leggi per aprire l'informativa
* Questi campi sono obbligatori

Calcola il tuo mutuo

Semplice e senza impegno
Anticipo

( % )
Mutuo

( % )

pochi semplici passi

inserisci i tuoi dati
Questionario completato
Grazie per aver richiesto un appuntamento senza impegno con un nostro Consulente del Credito e Assicurativo.

Hai inserito correttamente tutti i dati necessari e a breve riceverai una e-mail con un link da convalidare per inviare i tuoi dati.
Affiliato
Studio Valsamoggia Srl
Viale dei Martiri, 8 40050 Valsamoggia (BO)

Il nostro staff


  • Giovanni Giargiana
    Collaboratore

  • Treshani Chiara Hettithantrige
    Collaboratrice

  • Paolo Menzani
    Collaboratore

  • Simone Mazzocchi
    Collaboratore

  • Sofia Ruggeri
    Coordinatrice

  • Mattia Venturi
    Affiliato
Viale dei Martiri, 8 40050 Valsamoggia (BO)
Zona: Castello di Serravalle e Frazioni - Monteveglio
Mostra su mappa
Orari: dal lunedi' al venerdi' 9-13 e 15-19.30; il sabato 9-13
Affiliato
Studio Valsamoggia Srl
Viale dei Martiri, 8 40050 Valsamoggia (BO)

2026 Tecnocasa Franchising S.p.A. - P. IVA 08365160152 - Via Monte Bianco 60/A 20089 Rozzano (MI). Ogni agenzia ha un proprio titolare ed è autonoma. Privacy policy | Policy utilizzo | Cookie policy